VB系列球閥
概述
VB系列球閥采用 PTFE 石墨增強閥體密封圈,雙重 EPDM 閥桿密封圈。球形閥芯與閥桿均采用不銹鋼制造,可靠性高,高壽命,內置一體式配流盤,不怕反向壓差。等百分比流量特性,可調流量比。帶有手動執行器短接按鈕。高關斷力 1.4MPa。額定工作壓力 PN20。最大工作壓差 0.35Mpa。驅動器具有不同扭矩選擇,數種執行器及連接件可滿足多種應用需求。
?
?VB系列球閥
|
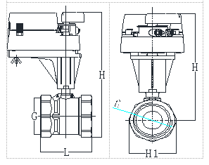
? 產品尺寸圖 |
|
|
|
|
? 特點
? ? ? l?VB系列球閥采用 PTFE 石墨增強閥體密封圈,雙重 EPDM 閥桿密封圈。球形閥芯與閥桿均采用不銹鋼制造,可靠性高,高壽命,
? ? ? l?內置一體式配流盤,不怕反向壓差。
? ? ? l?等百分比流量特性,可調流量比。
? ? ? l?帶有手動執行器短接按鈕。
? ? ? l?高關斷力 1.4MPa。額定工作壓力 PN20。最大工作壓差 0.35Mpa。
? ? ? l?驅動器具有不同扭矩選擇,數種執行器及連接件可滿足多種應用需求
? 應用:
? ? ? l?適用于中央空調、供熱冷熱水系統。
? ? ? l?適合工作溫度-5 到 85℃
? ? ? l?可適用于 50%的乙二醇水溶液
? 尺寸對應表
|
型號 |
口徑 |
G |
H(mm) |
H1(mm) |
L(mm) |
|
VBx-DN15-24(230)D |
DN15 |
G1/2 |
184 |
37.5 |
60 |
|
VBx-DN20-24(230)D |
DN20 |
G3/4 |
184 |
44 |
73 |
|
VBx-DN25-24(230)D |
DN25 |
G1 |
189 |
47 |
89 |
|
VBx-DN32-24(230)D |
DN32 |
G1-1/4 |
199 |
52.5 |
102.5 |
|
VBx-DN40-24(230)D |
DN40 |
G1-1/2 |
208 |
57 |
113 |
|
VBx-DN50-24(230)D |
DN50 |
G2 |
219 |
62 |
127.5 |
注:x=M,閥體為調節型帶配流盤,x=S,閥體為開關型,無配流盤裝置。
? 執行器接線說明

|
|
|
介質 |
冷、熱水,最大濃度50%的乙二醇溶液 |
|
介質溫度 |
-5...+100°C |
|
額定壓力 |
2500kPa |
|
流量特性 |
等百分比 |
|
滲漏 |
0...0.01% Kvs值 (ANSI Class IV)(出廠時無滲漏) ? |
|
壓差 |
△Pmax350kPa (200kPa為低噪音工作壓力) |
|
關閉壓力 |
△Ps1400kPa |
|
旋轉角度 |
90° |
|
安裝位置 |
安裝位置向上垂直或水平安裝 (參照閥軸) |
|
維護 |
免維護 |
|
閥門材質 |
閥體:鍛造黃銅 |
|
閥球:不銹鋼 |
|
|
閥座:RPTFE |
|
|
閥軸:不銹鋼 |
|
|
配流盤:PPA |
? 拔碼開關說明
???
? 輔助開關選配說明
? ? ? 該系列球閥驅動器帶有兩個輔助開關,可以在?0-90o范圍內自由設置角度。用于在驅動器轉動到設定角度時輸出一個開關信號。
? ? ? 內置開關觸點容量為:阻性負載?3A,230V,感性負載?1.5A,230。
?